住まい・空き家情報






おすすめポイント


物件概要
| 所在地 | 土佐市新居978番地2 |
|---|---|
| 金額 | 売買 900万円 |
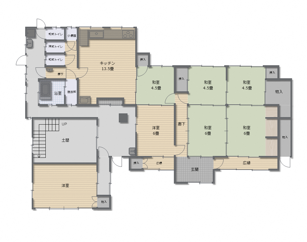
| 間取り | 間取り図参照 |
| 占有面積 | 敷地面積400.94㎡ 延床面積218.65㎡ |
| 物件詳細 | こちらをご確認ください。 |
| お問い合わせ | 土佐市役所企画財政課 〒781-1192 高知県土佐市高岡町甲2017-1 TEL:088-852-7609(直通) E-mail:kikaku@city.tosa.lg.jp URL:https://www.city.tosa.lg.jp/life/detail.php?hdnKey=3692 |
※2025年10月01日時点の情報です
高知暮らしをお考えのみなさまのご相談を承ります!
移住までの経緯や高知での生活の様子、地元の方に思いなどを聞きました。
企業就職以外の『高知ならではの多様な働き方』をご提案します。
高知県へのUIターンに関するイベントや移住者向け交流会の情報を掲載しています。
イベント情報や支援情報など、
最新の情報をメールでお知らせします!